BACK TO COMMUNITY AND EDUCATION PROJECTS

METHODIST CHURCH, WADEBRIDGE

PROJECTS

PEOPLE

EXPERTISE

AWARDS / FEATURES

BLOG

PHILOSOPHY

DESIGN PROCESS

HELPFUL ADVICE

LINKS

CONTACT US

Winning architectural competition entry for a new church and community centre for the Wadebridge Methodists.

 

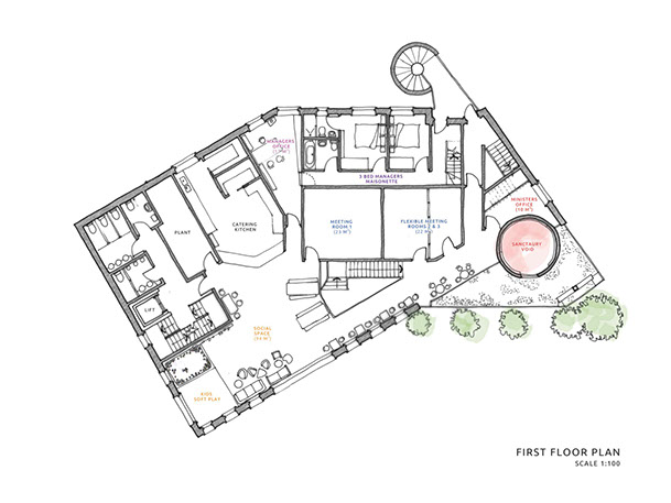
Flexibility of use was a key design consideration throughout the scheme ensuring the building will always be an inspiring home for both the Church and the Local Community long into the future. This gives the ability for the building to serve both varying size church functions as well as multiple community activities. The scheme is suited to both the needs of the existing community and will be able to adapt to the future communities needs as they evolve through a variety of space permutations.

 

The sanctuary is the core space within the building providing a place for prayers, reflection and peace. The sanctuary consists of a two storey vertical timber cylinder with glazed skylight conveying natural light down into the space from above. The curved timber wall is interspersed with pieces of clear glass throughout its structure to allow light to permeate through from the winter garden on the East facade. Stained glass will also be inserted at intervals in the form of the Methodist flame giving a light and colourful focus for worship.

Contact                         Office 5-6 Hamilton House, The Platt, Wadebridge, Cornwall, PL27 7AD                   Tel: 01208 813 131          Mob: 07976 740 155